Zijn er ideeen voor mijn tuin????
#1
vr, 30/10/2009 - 15:52
Zijn er ideeen voor mijn tuin????
Hallo,
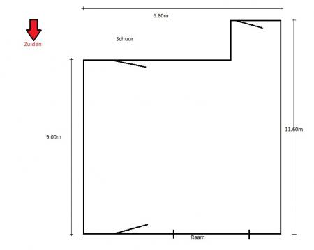
Binnenkort wil ik eens aan onze achtertuin beginnen die er uitziet zoals op
de tekening. Mijn ideeën zijn er wel maar helaas kom ik niet tot een
concreet ontwerp.
Mijn tuin gegevens zijn:
-Tuin op het zuiden.
-6.80m breed.
-11.60m Diep.
-9m diep tot aan de schuur.
Mijn eisen:
-Er komt een muur-kas in van 1.50m x 0.80m
-De bestrating word gemaakt van oud gebakken waaltjes.
-terras gedeelte
-Een pad langs de schuur af naar de poort.
-Het moet een vogel vriendelijke tuin worden
-Veel kruiden
-Veel bloemen en geuren.
-Het mag best allemaal best weelderig zijn maar wel in toom te houden.
Mijn planten die ik nu nog heb en meegaan in de nieuwe tuin:
-krentenboompje
-Vlinderstruik
-Vingerhoedskruid
-Magnolia
(word in de toekomst ongeveer 3 meter)
-Boerenjasmijn
-Druivenstruik komt tegen een pergola
-klimhortensia
-Eikenbladhortensia
Het zijn wat eisen maar er moet toch wel wat mee te doen zijn.
Zijn er mensen met ideeen of misschien foto's etc die mij tot een
definitief ontwerp kunnen helpen.
Mvg,
Patrick





Ik vind het moeilijk om een antwoord te geven op je wensen. Het zou al direct overzichtelijker worden, ook voor jezelf, als je de paden en het terras zou tekenen en ook de plek van het muurkasje. Dan weet je wat je aan grond over hebt en kan je je een voorstelling maken van waar je de genoemde grote struiken wilt gaan neerzetten. Ook vraag ik mij af hoe de omheining is. Vertel ons wat meer.
Frans.
de planten moet je eerst nog even achterwege laten,en eerst je tuin indelen
Hallo Patrick,
Ik zou voor jou een ontwerp kunnen maken als je intersse hebt want, ik heb wel een paar ideeen voor jou tuin.
Ik ben hovenier en maak zo af en toe wat ontwerpen voor mensen die ik ken.
Door mijn werk heb altijd veel ideeen die ik in mijn ontwerpen kan gebruiken.
Als je intressen hebt mail me dan even al je wensen door.
Zoals de grote van je terras,enz.
Mijn e mail is wesley-eichholtz81
hotmail [dot] com
Mvg.Wesley